Listed by Barbara McWhorter of The Realty Firm - Byrdstown (9318640404)
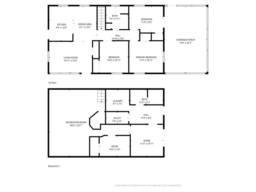
Complete renovation of this 2050 sq feet home located on Eagles Cove Road. This total transformation goes beyond cosmetic fixes to involve structural, the layout, and systems changes, essentially making it feel like a new house by redoing walls, plumbing, electrical , insulation, and finishes for improved Functionality , Value, and Modern Living! The kitchen and living area provide a nice open-concept, the kitchen flows directly into the living/dining area with partial wall. Nicely designed kitchen with all new cabinetry, appliances and granite counter-tops. The beautiful continuous flooring through the home and also in the finished basement is Cairo Oak by Coretec. The bathrooms are custom designed with LED lighting, modern fixtures, and a beautiful Kenzie Zenzibar porcelain tile. Also enjoy being able to walk out of the bedroom suite to a screened in porch designed with lifetime composite plank flooring. The screened in deck also has access from the exterior of the home.

Listing Tools

Property Details of 5021 Eagles Cove Road

Map Location

Based on information submitted to Upper Cumberland as of February 18, 2026 7:41 AM EST. All data is deemed reliable but is not guaranteed accurate by the MLS. All information should be independently reviewed and verified for accuracy. IDX information is provided exclusively for consumers’ personal, noncommercial use and may not be used for any purpose other than to identify prospective properties consumers may be interested in purchasing.

Hi there! How can we help you?

Contact us using the form below or give us a call.

Send Us A Message:

I agree to be contacted by Highlands Elite Real Estate via call, email, and text for real estate services. To opt out, you can reply 'stop' at any time or reply 'help' for assistance. You can also click the unsubscribe link in the emails. Consent is not a condition of purchase. Message and data rates may apply. Message frequency may vary. Privacy Policy.

Do not fill in this field:

This site is protected by reCAPTCHA and the Google Privacy Policy and Terms of Service apply.

Hi there! How can we help you?

Contact us using the form below or give us a call.

Send Us A Message:

Do not fill in this field:

This site is protected by reCAPTCHA and the Google Privacy Policy and Terms of Service apply.

Hi there! How can we help you?

Contact us using the form below or give us a call.

Send Us A Message:

Do not fill in this field:

This site is protected by reCAPTCHA and the Google Privacy Policy and Terms of Service apply.

Do not fill in this field:

This site is protected by reCAPTCHA and the Google Privacy Policy and Terms of Service apply.

Do not fill in this field:

This site is protected by reCAPTCHA and the Google Privacy Policy and Terms of Service apply.

Do not fill in this field:

This site is protected by reCAPTCHA and the Google Privacy Policy and Terms of Service apply.

$

Do not fill in this field:

This site is protected by reCAPTCHA and the Google Privacy Policy and Terms of Service apply.