Listed by Amanda Wiegand-Selby and Athena Harper of Highlands Elite Real Estate LLC (9314008820)
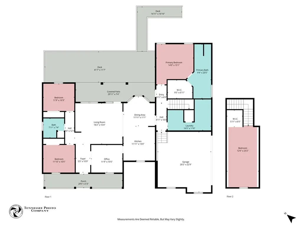
Step into the charming appeal of 148 Hailey Ridge Lane, a meticulously maintained residence in Gainesboro, TN, offering 2,479 SqFt of living space on a 2.3-acre lot. A beautiful foyer welcomes you, providing a graceful transition into the dedicated home office area. The heart of the home is the inviting living room, featuring a beautiful gas fireplace flanked by built-in shelving. The well-appointed kitchen boasts all necessary appliances, granite countertops, and center island that flows seamlessly into an adjoining dining area highlighted by a bay window. The split bedroom floor plan ensures privacy, encompassing 3 bedrooms and 2 full baths. Practical amenities include an oversized laundry room and a versatile bonus room situated above the two-car attached garage. Outdoor living is a delight with a combination of covered and open back patio/deck, and a refreshing above-ground pool. Further enhancing the property is a detached 12x20 outbuilding with electricity and RV hook up.

Listing Tools

Property Details of 148 Hailey Ridge Lane

Map Location

Based on information submitted to Upper Cumberland as of November 10, 2025 11:44 PM EST. All data is deemed reliable but is not guaranteed accurate by the MLS. All information should be independently reviewed and verified for accuracy. IDX information is provided exclusively for consumers’ personal, noncommercial use and may not be used for any purpose other than to identify prospective properties consumers may be interested in purchasing.

Hi there! How can we help you?

Contact us using the form below or give us a call.

Send Us A Message:

I agree to receive marketing and customer service calls and text messages from Highlands Elite Real Estate. To opt out, you can reply 'stop' at any time or click the unsubscribe link in the emails. Consent is not a condition of purchase. Msg/data rates may apply. Msg frequency varies. Privacy Policy.

Do not fill in this field:

This site is protected by reCAPTCHA and the Google Privacy Policy and Terms of Service apply.

Hi there! How can we help you?

Contact us using the form below or give us a call.

Send Us A Message:

Do not fill in this field:

This site is protected by reCAPTCHA and the Google Privacy Policy and Terms of Service apply.

Hi there! How can we help you?

Contact us using the form below or give us a call.

Send Us A Message:

Do not fill in this field:

This site is protected by reCAPTCHA and the Google Privacy Policy and Terms of Service apply.

Do not fill in this field:

This site is protected by reCAPTCHA and the Google Privacy Policy and Terms of Service apply.

Do not fill in this field:

This site is protected by reCAPTCHA and the Google Privacy Policy and Terms of Service apply.

Do not fill in this field:

This site is protected by reCAPTCHA and the Google Privacy Policy and Terms of Service apply.

$

Do not fill in this field:

This site is protected by reCAPTCHA and the Google Privacy Policy and Terms of Service apply.