Listed by Brandon Upchurch of Highlands Elite Real Estate Gainesboro (9312687653)
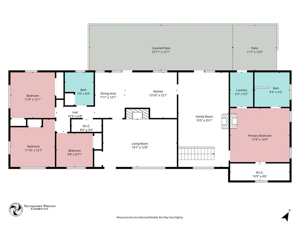
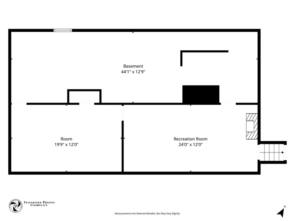
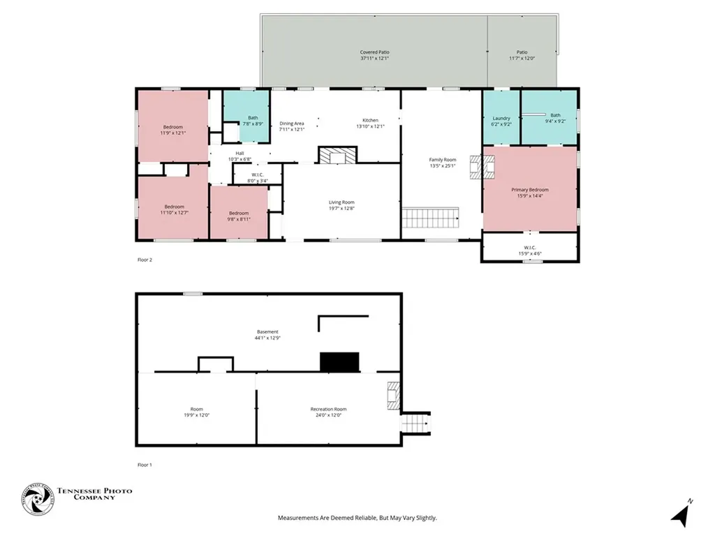
Welcome to this well-maintained brick ranch in the heart of Baxter, Tennessee, just minutes from I-40 for easy commuting and travel. This charming home features 4 bedrooms and 2 full bathrooms, offering plenty of room for comfortable living. Enjoy a spacious living room and a bonus family room, perfect for entertaining or relaxing with family. The partially finished basement includes a bonus room, ideal for a home office, guest space, or recreation area. Outside, you'll love the above-ground pool, detached two-car garage, and extra storage shed-providing ample space for vehicles, tools, and outdoor gear. Nestled in a quiet, established neighborhood, this property combines classic style with modern convenience-ready for you to move in and make it your own.

Listing Tools

Property Details of 8597 Chaffin Road

Map Location

Based on information submitted to Upper Cumberland as of November 8, 2025 1:12 PM EST. All data is deemed reliable but is not guaranteed accurate by the MLS. All information should be independently reviewed and verified for accuracy. IDX information is provided exclusively for consumers’ personal, noncommercial use and may not be used for any purpose other than to identify prospective properties consumers may be interested in purchasing.

Hi there! How can we help you?

Contact us using the form below or give us a call.

Send Us A Message:

I agree to receive marketing and customer service calls and text messages from Highlands Elite Real Estate. To opt out, you can reply 'stop' at any time or click the unsubscribe link in the emails. Consent is not a condition of purchase. Msg/data rates may apply. Msg frequency varies. Privacy Policy.

Do not fill in this field:

This site is protected by reCAPTCHA and the Google Privacy Policy and Terms of Service apply.

Hi there! How can we help you?

Contact us using the form below or give us a call.

Send Us A Message:

Do not fill in this field:

This site is protected by reCAPTCHA and the Google Privacy Policy and Terms of Service apply.

Hi there! How can we help you?

Contact us using the form below or give us a call.

Send Us A Message:

Do not fill in this field:

This site is protected by reCAPTCHA and the Google Privacy Policy and Terms of Service apply.

Do not fill in this field:

This site is protected by reCAPTCHA and the Google Privacy Policy and Terms of Service apply.

Do not fill in this field:

This site is protected by reCAPTCHA and the Google Privacy Policy and Terms of Service apply.

Do not fill in this field:

This site is protected by reCAPTCHA and the Google Privacy Policy and Terms of Service apply.

$

Do not fill in this field:

This site is protected by reCAPTCHA and the Google Privacy Policy and Terms of Service apply.