Listed by Eleanor York of Exit Cross Roads Realty Cookeville (9315207733,exityorkteam@gmail.com)
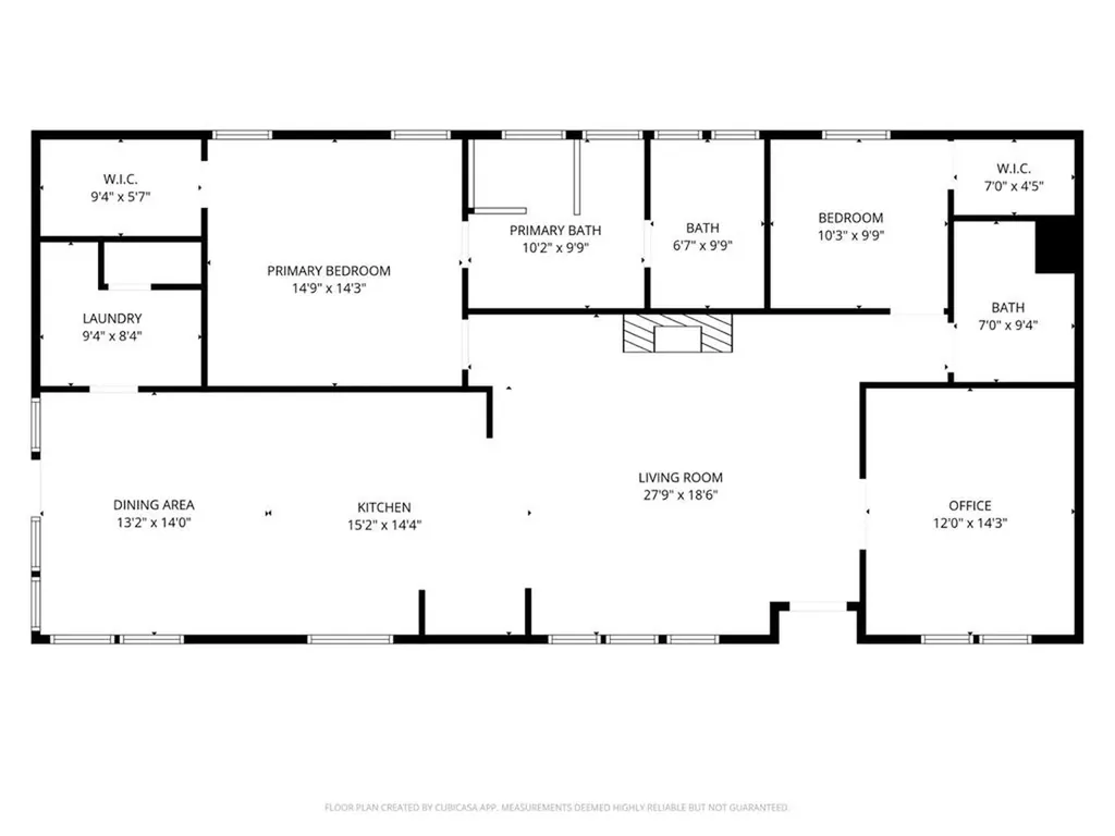
Escape to your own piece of paradise with this exceptionally well-built manufactured home (see list of upgrades!) perfectly positioned on 5 rolling acres of wooded and open land. This thoughtfully designed home was built to last: Hardie board siding, 2x6" walls, extra insulation, water softener, whole-house generator, fireplace, and so much more! 3bed/2bath with 9ft ceilings, open-concept, abundant natural light, scenic views, and energy-efficient systems. Massive 40' x 40' garage/workshop with electric, water, commercial grade 10x20' doors, half bath and 8" concrete floor with rebar and a drain for heavy equipment. A safely positioned gun range, 3 carports and fenced area. If you are looking for a full-time residence or a recreational getaway, this property has it all - from a peaceful creek winding through the trees to mountain-style views that will take your breath away. Whether you're a homesteader, hunter, or outdoor enthusiast, this unique property is a must-see.

Listing Tools

Property Details of 3524 Griffintown Road

Map Location

Based on information submitted to Upper Cumberland as of December 7, 2025 4:41 PM EST. All data is deemed reliable but is not guaranteed accurate by the MLS. All information should be independently reviewed and verified for accuracy. IDX information is provided exclusively for consumers’ personal, noncommercial use and may not be used for any purpose other than to identify prospective properties consumers may be interested in purchasing.

Hi there! How can we help you?

Contact us using the form below or give us a call.

Send Us A Message:

I agree to receive marketing and customer service calls and text messages from Highlands Elite Real Estate. To opt out, you can reply 'stop' at any time or click the unsubscribe link in the emails. Consent is not a condition of purchase. Msg/data rates may apply. Msg frequency varies. Privacy Policy.

Do not fill in this field:

This site is protected by reCAPTCHA and the Google Privacy Policy and Terms of Service apply.

Hi there! How can we help you?

Contact us using the form below or give us a call.

Send Us A Message:

Do not fill in this field:

This site is protected by reCAPTCHA and the Google Privacy Policy and Terms of Service apply.

Hi there! How can we help you?

Contact us using the form below or give us a call.

Send Us A Message:

Do not fill in this field:

This site is protected by reCAPTCHA and the Google Privacy Policy and Terms of Service apply.

Do not fill in this field:

This site is protected by reCAPTCHA and the Google Privacy Policy and Terms of Service apply.

Do not fill in this field:

This site is protected by reCAPTCHA and the Google Privacy Policy and Terms of Service apply.

Do not fill in this field:

This site is protected by reCAPTCHA and the Google Privacy Policy and Terms of Service apply.

$

Do not fill in this field:

This site is protected by reCAPTCHA and the Google Privacy Policy and Terms of Service apply.