Listed by Gina Knight of RE/MAX Finest (9314844003)
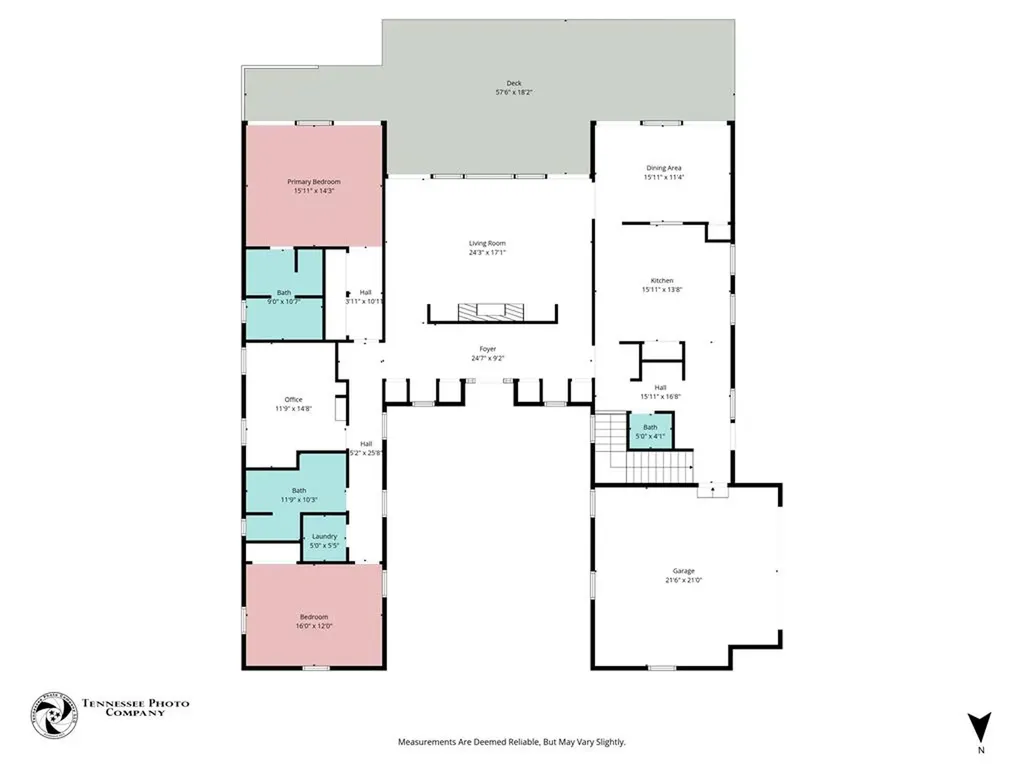
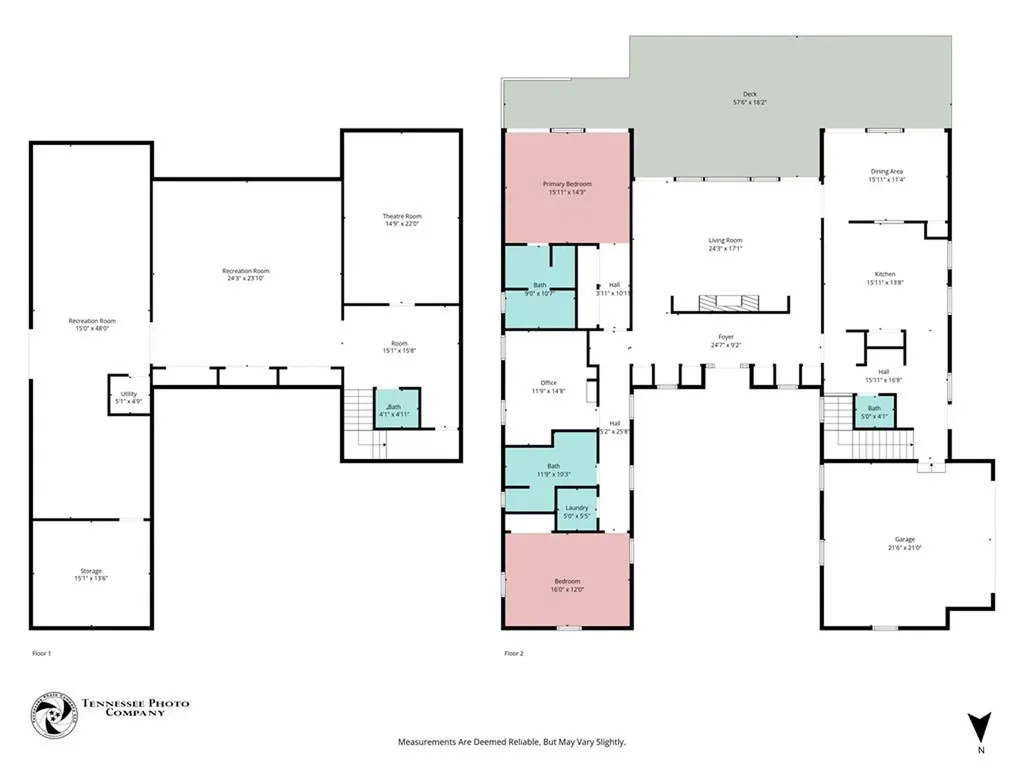
Designed by world-renowned architect Hugh Newell Jacobsen, this modern masterpiece brings his Life Magazine Dream House concept to life on the Cumberland Plateau. Set on 28 private acres with bluffs, caves, and cascading waterfalls, this 2023 custom build highlights Anderson windows and doors, Superior Walls foundation, Hardie Board siding, spray-foam insulation, and zip-board decking. Inside, enjoy 9-10' ceilings, 8' windows, a theater room wired for surround sound, quartz counters, KitchenAid appliances, and a gas fireplace beneath vaulted ceilings. Added features include whole-home audio, heated tile floors in the primary bath, tankless water heater, dual-fuel HVAC, and generator wiring. Outdoor living shines with a hot tub, raised planters, a 54' Trex deck, a 2436 insulated pole barn with attic storage, and a 1224 spray-foamed cabin with dual lofts. A rare blend of architectural pedigree and Tennessee tranquility.

Listing Tools

Property Details of 1499 Doe And Fawn Lane

Map Location

Based on information submitted to Upper Cumberland as of November 10, 2025 11:44 PM EST. All data is deemed reliable but is not guaranteed accurate by the MLS. All information should be independently reviewed and verified for accuracy. IDX information is provided exclusively for consumers’ personal, noncommercial use and may not be used for any purpose other than to identify prospective properties consumers may be interested in purchasing.

Hi there! How can we help you?

Contact us using the form below or give us a call.

Send Us A Message:

I agree to receive marketing and customer service calls and text messages from Highlands Elite Real Estate. To opt out, you can reply 'stop' at any time or click the unsubscribe link in the emails. Consent is not a condition of purchase. Msg/data rates may apply. Msg frequency varies. Privacy Policy.

Do not fill in this field:

This site is protected by reCAPTCHA and the Google Privacy Policy and Terms of Service apply.

Hi there! How can we help you?

Contact us using the form below or give us a call.

Send Us A Message:

Do not fill in this field:

This site is protected by reCAPTCHA and the Google Privacy Policy and Terms of Service apply.

Hi there! How can we help you?

Contact us using the form below or give us a call.

Send Us A Message:

Do not fill in this field:

This site is protected by reCAPTCHA and the Google Privacy Policy and Terms of Service apply.

Do not fill in this field:

This site is protected by reCAPTCHA and the Google Privacy Policy and Terms of Service apply.

Do not fill in this field:

This site is protected by reCAPTCHA and the Google Privacy Policy and Terms of Service apply.

Do not fill in this field:

This site is protected by reCAPTCHA and the Google Privacy Policy and Terms of Service apply.

$

Do not fill in this field:

This site is protected by reCAPTCHA and the Google Privacy Policy and Terms of Service apply.