Listed by Tina Isham of Isham-Jones Realty (9319940022)
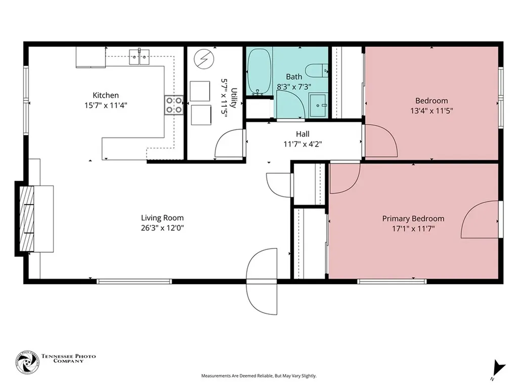
INVESTORS SPECIAL - Bring Your Vision! Built in 1990 2 Bedrooms | 1 Full Bath 1,421sf of living space 1.38 acres of nice, mostly cleared, nicely laying land ? PROPERTY HIGHLIGHTS: Large covered front concrete porch Spacious kitchen with plenty of cabinets and an electric range Living room fireplace with wood-burning stove as the primary heat source Private setting surrounded by open space Well water system in place, but public water available at the road ?? IMPORTANT NOTES: This home needs extensive work - a true fixer-upper opportunity Will not qualify for secondary market financing Cash or in-house conventional loan only Property is being sold as-is - sellers make no guarantees ?? Perfect for an investor or handyman looking for a great project with land and potential! *Buyers to verify all information & measurements before making an informed offer*

Listing Tools

Property Details of 1602 Hollis Poore Road

Map Location

Based on information submitted to Upper Cumberland as of November 14, 2025 4:41 AM EST. All data is deemed reliable but is not guaranteed accurate by the MLS. All information should be independently reviewed and verified for accuracy. IDX information is provided exclusively for consumers’ personal, noncommercial use and may not be used for any purpose other than to identify prospective properties consumers may be interested in purchasing.

Hi there! How can we help you?

Contact us using the form below or give us a call.

Send Us A Message:

I agree to receive marketing and customer service calls and text messages from Highlands Elite Real Estate. To opt out, you can reply 'stop' at any time or click the unsubscribe link in the emails. Consent is not a condition of purchase. Msg/data rates may apply. Msg frequency varies. Privacy Policy.

Do not fill in this field:

This site is protected by reCAPTCHA and the Google Privacy Policy and Terms of Service apply.

Hi there! How can we help you?

Contact us using the form below or give us a call.

Send Us A Message:

Do not fill in this field:

This site is protected by reCAPTCHA and the Google Privacy Policy and Terms of Service apply.

Hi there! How can we help you?

Contact us using the form below or give us a call.

Send Us A Message:

Do not fill in this field:

This site is protected by reCAPTCHA and the Google Privacy Policy and Terms of Service apply.

Do not fill in this field:

This site is protected by reCAPTCHA and the Google Privacy Policy and Terms of Service apply.

Do not fill in this field:

This site is protected by reCAPTCHA and the Google Privacy Policy and Terms of Service apply.

Do not fill in this field:

This site is protected by reCAPTCHA and the Google Privacy Policy and Terms of Service apply.

$

Do not fill in this field:

This site is protected by reCAPTCHA and the Google Privacy Policy and Terms of Service apply.