Listed by Eleanor York of Exit Cross Roads Realty Cookeville (9315207733,exityorkteam@gmail.com)
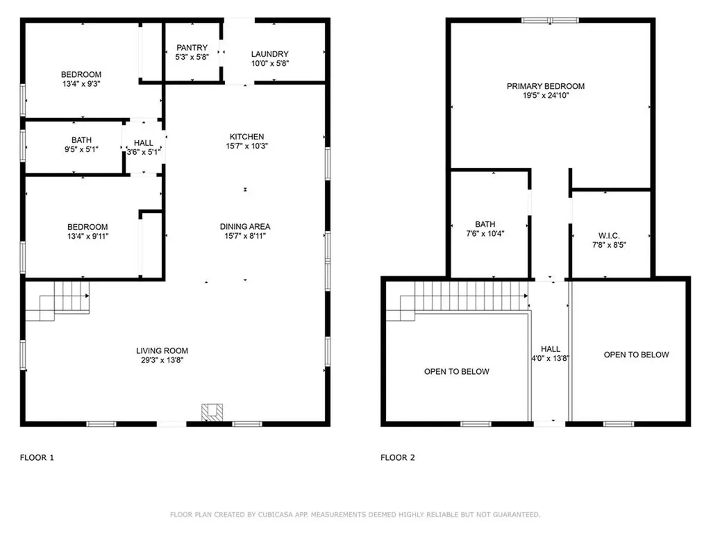
Welcome to this 1790 sqft retreat that blends rustic charm with modern comfort. Featuring a unique lake cabin feel, this 3 bed, 2.5 bath home is perfect for anyone seeking a warm inviting atmosphere surrounded by natural beauty. Rich hardwood floors, granite countertops, soaring ceilings, and even a catwalk out to an upstairs balcony make this house one of a kind! Large windows fill the home with natural light and the wraparound deck allows you to enjoy breathtaking mountain views at any time of the day. Finish off this amazing property with a massive detached garage/workshop with half bath, walkout crawl space for easy access and an extra lot making the total land 1.6 acres. This property has it all! New upstairs HVAC and new water heater. Seller to provide a one-year Home Warranty.

Listing Tools

Property Details of 283 Bethlehem Road

Map Location

Based on information submitted to Upper Cumberland as of March 9, 2026 10:41 PM EDT. All data is deemed reliable but is not guaranteed accurate by the MLS. All information should be independently reviewed and verified for accuracy. IDX information is provided exclusively for consumers’ personal, noncommercial use and may not be used for any purpose other than to identify prospective properties consumers may be interested in purchasing.

Hi there! How can we help you?

Contact us using the form below or give us a call.

Send Us A Message:

I agree to be contacted by Highlands Elite Real Estate via call, email, and text for real estate services. To opt out, you can reply 'stop' at any time or reply 'help' for assistance. You can also click the unsubscribe link in the emails. Consent is not a condition of purchase. Message and data rates may apply. Message frequency may vary. Privacy Policy.

Do not fill in this field:

This site is protected by reCAPTCHA and the Google Privacy Policy and Terms of Service apply.

Hi there! How can we help you?

Contact us using the form below or give us a call.

Send Us A Message:

Do not fill in this field:

This site is protected by reCAPTCHA and the Google Privacy Policy and Terms of Service apply.

Hi there! How can we help you?

Contact us using the form below or give us a call.

Send Us A Message:

Do not fill in this field:

This site is protected by reCAPTCHA and the Google Privacy Policy and Terms of Service apply.

Do not fill in this field:

This site is protected by reCAPTCHA and the Google Privacy Policy and Terms of Service apply.

Do not fill in this field:

This site is protected by reCAPTCHA and the Google Privacy Policy and Terms of Service apply.

Do not fill in this field:

This site is protected by reCAPTCHA and the Google Privacy Policy and Terms of Service apply.

$

Do not fill in this field:

This site is protected by reCAPTCHA and the Google Privacy Policy and Terms of Service apply.