Listed by Kelly Latham of RE/MAX COUNTRY LIVING,LLC (9318643380)
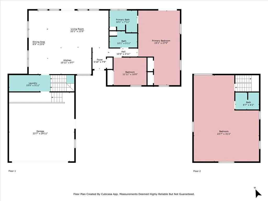
Spacious lake home with stunning views of Dale Hollow Lake, located in a quiet low-traffic area just 4 miles from Eagle Cove Resort & Marina. This 5BR/4BA home (septic approved for 2BR) offers three levels of comfortable living. Main floor features a primary suite with en suite bath, guest bedroom & full bath, open kitchen/living/dining, laundry & garage entry. Upstairs provides an open bonus room & full bath, while the lower level includes a rec room, 2 bedrooms & full bath. The home has a high efficiency furnace and a 3-year roof. Store the boat, jet skis, lake toys, vehicles and more in spacious 25x33 garage. Enjoy the outdoors from the expansive deck or lower patio overlooking the lake & Tennessee hills. Perfect for multi-family living, vacation retreat, or investment! Selling furnished, less personal items and items in garage. The adjoining property is also for sale. A 2 bed/1 bath home with 3 car garage for $379,000. 7378 Lillydale Rd

Listing Tools

Property Details of 7380 Lillydale Road

Map Location

Based on information submitted to Upper Cumberland as of May 14, 2026 10:41 PM EDT. All data is deemed reliable but is not guaranteed accurate by the MLS. All information should be independently reviewed and verified for accuracy. IDX information is provided exclusively for consumers’ personal, noncommercial use and may not be used for any purpose other than to identify prospective properties consumers may be interested in purchasing.

Hi there! How can we help you?

Contact us using the form below or give us a call.

Send Us A Message:

I agree to be contacted by Highlands Elite Real Estate via call, email, and text for real estate services. To opt out, you can reply 'stop' at any time or reply 'help' for assistance. You can also click the unsubscribe link in the emails. Consent is not a condition of purchase. Message and data rates may apply. Message frequency may vary. Privacy Policy.

Do not fill in this field:

This site is protected by reCAPTCHA and the Google Privacy Policy and Terms of Service apply.

Hi there! How can we help you?

Contact us using the form below or give us a call.

Send Us A Message:

Do not fill in this field:

This site is protected by reCAPTCHA and the Google Privacy Policy and Terms of Service apply.

Hi there! How can we help you?

Contact us using the form below or give us a call.

Send Us A Message:

Do not fill in this field:

This site is protected by reCAPTCHA and the Google Privacy Policy and Terms of Service apply.

Do not fill in this field:

This site is protected by reCAPTCHA and the Google Privacy Policy and Terms of Service apply.

Do not fill in this field:

This site is protected by reCAPTCHA and the Google Privacy Policy and Terms of Service apply.

Do not fill in this field:

This site is protected by reCAPTCHA and the Google Privacy Policy and Terms of Service apply.

$

Do not fill in this field:

This site is protected by reCAPTCHA and the Google Privacy Policy and Terms of Service apply.