Listed by Heather Skender-Newton of Skender-Newton Realty (9312619001)

Listing Sold by Exit Rocky Top Realty-CK
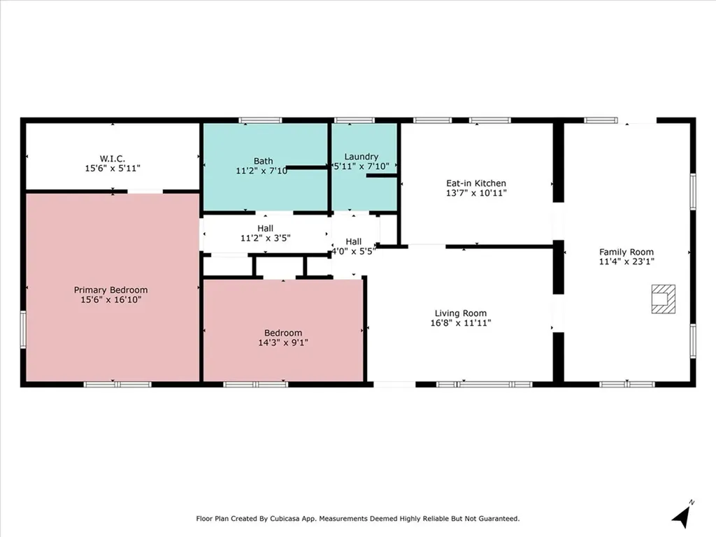
Almost 7 unrestricted acres provided an updated brick ranch home, a garage + workshop with 2 roll up doors + a full finished apartment above it with a spacious deck, as well as a pole barn! Driving up, you have a freshly exterior painted home with custom wood shutters, and a fenced in backyard. Once inside the home, you have hardwood and tile floors throughout with fresh paint and new stainless steel appliances in the kitchen. You have two bedrooms, with one of them having a walk-in closet, and then a full bathroom with a double vanity as well as a half bath in the laundry. Behind the home there is also a storage building and chicken coop ready to go, as well as ample parking whether it's for many vehicles, an RV or camper, or more space to build another home! The finished apartment above the garage is one bedroom and one full bathroom as well as a kitchenette area and a wood vaulted ceilings. Towards the back the barn has three stalls and does need a metal roof.

Listing Tools

Property Details of 5536 Buck Mountain Road

Map Location

Based on information submitted to Upper Cumberland as of November 11, 2025 6:11 PM EST. All data is deemed reliable but is not guaranteed accurate by the MLS. All information should be independently reviewed and verified for accuracy. IDX information is provided exclusively for consumers’ personal, noncommercial use and may not be used for any purpose other than to identify prospective properties consumers may be interested in purchasing.

Hi there! How can we help you?

Contact us using the form below or give us a call.

Send Us A Message:

I agree to receive marketing and customer service calls and text messages from Highlands Elite Real Estate. To opt out, you can reply 'stop' at any time or click the unsubscribe link in the emails. Consent is not a condition of purchase. Msg/data rates may apply. Msg frequency varies. Privacy Policy.

Do not fill in this field:

This site is protected by reCAPTCHA and the Google Privacy Policy and Terms of Service apply.

Hi there! How can we help you?

Contact us using the form below or give us a call.

Send Us A Message:

Do not fill in this field:

This site is protected by reCAPTCHA and the Google Privacy Policy and Terms of Service apply.

Hi there! How can we help you?

Contact us using the form below or give us a call.

Send Us A Message:

Do not fill in this field:

This site is protected by reCAPTCHA and the Google Privacy Policy and Terms of Service apply.

Do not fill in this field:

This site is protected by reCAPTCHA and the Google Privacy Policy and Terms of Service apply.

Do not fill in this field:

This site is protected by reCAPTCHA and the Google Privacy Policy and Terms of Service apply.

Do not fill in this field:

This site is protected by reCAPTCHA and the Google Privacy Policy and Terms of Service apply.

$

Do not fill in this field:

This site is protected by reCAPTCHA and the Google Privacy Policy and Terms of Service apply.