Listed by Heather Cowart of Highlands Elite Real Estate LLC - Crvl (9317106070)

Listing Sold by The Real Estate Collective Sparta
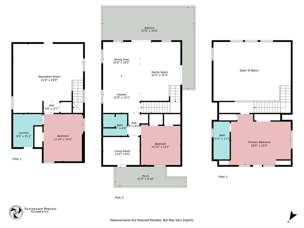
Tucked away and kissed by mountain breezes, this enchanting property offers 36 acres, 2,000' of frontage onEast Fork Obey River, and a cabin with plenty of room for everyone! This could be the perfect short-term rental, getaway home, or full-time living. Gorgeous views in every season, breathtaking sunrises, ATV trails, listening to the ripples of the river, and swinging by a fire at night, stargazing make this a true haven to get away from the hustle.3 bedrooms (2-bedroom septic) + bonus room Lower level: kitchenette, bedroom, laundry, and living space leading to patio Second level: kitchen, living room, bathroom with tiled shower, bonus room, bedroom Third level: private ensuite with deck Upgrades: 2020 HVAC, new roof, paint, exterior stain, lower-level flooring Extras: Generac generator, fiber optic internet Location: Near Muddy Pond Mennonite Community, mins to I40 halfway to Knoxville and Nashville, *Buyer to verify all information to make an informed offer* Minimal Restrictions

Listing Tools

Property Details of 7040 Fallen Timer Lane

Map Location

Based on information submitted to Upper Cumberland as of November 11, 2025 5:42 PM EST. All data is deemed reliable but is not guaranteed accurate by the MLS. All information should be independently reviewed and verified for accuracy. IDX information is provided exclusively for consumers’ personal, noncommercial use and may not be used for any purpose other than to identify prospective properties consumers may be interested in purchasing.

Hi there! How can we help you?

Contact us using the form below or give us a call.

Send Us A Message:

I agree to receive marketing and customer service calls and text messages from Highlands Elite Real Estate. To opt out, you can reply 'stop' at any time or click the unsubscribe link in the emails. Consent is not a condition of purchase. Msg/data rates may apply. Msg frequency varies. Privacy Policy.

Do not fill in this field:

This site is protected by reCAPTCHA and the Google Privacy Policy and Terms of Service apply.

Hi there! How can we help you?

Contact us using the form below or give us a call.

Send Us A Message:

Do not fill in this field:

This site is protected by reCAPTCHA and the Google Privacy Policy and Terms of Service apply.

Hi there! How can we help you?

Contact us using the form below or give us a call.

Send Us A Message:

Do not fill in this field:

This site is protected by reCAPTCHA and the Google Privacy Policy and Terms of Service apply.

Do not fill in this field:

This site is protected by reCAPTCHA and the Google Privacy Policy and Terms of Service apply.

Do not fill in this field:

This site is protected by reCAPTCHA and the Google Privacy Policy and Terms of Service apply.

Do not fill in this field:

This site is protected by reCAPTCHA and the Google Privacy Policy and Terms of Service apply.

$

Do not fill in this field:

This site is protected by reCAPTCHA and the Google Privacy Policy and Terms of Service apply.