Listed by Tiffany McDonald of Highlands Elite Real Estate LLC (9314008820)

Listing Sold by American Way Real Estate
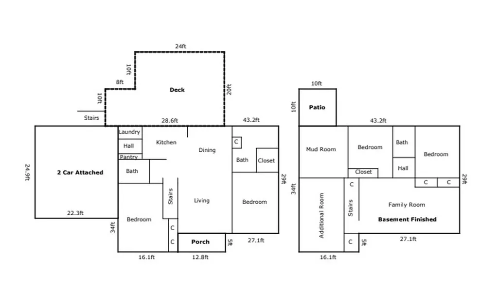
A home that offers both space and versatility-this 4-bedroom, 3-bathroom property sits on a generous fenced-in corner lot, providing room to grow, gather, and make it your own. The fully finished basement expands the possibilities, featuring two bedrooms, a full bath, a large den, a utility room, and an additional flex space that could easily be transformed into a second kitchen. Whether you're looking for a multi-generational living setup, rental potential, or just extra space for hobbies, this layout adapts to your needs. As an added bonus, the basement provides extra security during storms, offering peace of mind when weather turns severe. Outside, the outbuilding with electricity is ready for use-whether as a workshop, studio, or extra storage. The backyard even has a producing blueberry bush, adding a sweet touch to your mornings. Conveniently located just minutes from TTU, the hospital, and a variety of restaurants and shops-all without the added cost of city taxes.

Listing Tools

Property Details of 1471 Mayfield Drive

Map Location

Based on information submitted to Upper Cumberland as of November 11, 2025 6:41 PM EST. All data is deemed reliable but is not guaranteed accurate by the MLS. All information should be independently reviewed and verified for accuracy. IDX information is provided exclusively for consumers’ personal, noncommercial use and may not be used for any purpose other than to identify prospective properties consumers may be interested in purchasing.

Hi there! How can we help you?

Contact us using the form below or give us a call.

Send Us A Message:

I agree to receive marketing and customer service calls and text messages from Highlands Elite Real Estate. To opt out, you can reply 'stop' at any time or click the unsubscribe link in the emails. Consent is not a condition of purchase. Msg/data rates may apply. Msg frequency varies. Privacy Policy.

Do not fill in this field:

This site is protected by reCAPTCHA and the Google Privacy Policy and Terms of Service apply.

Hi there! How can we help you?

Contact us using the form below or give us a call.

Send Us A Message:

Do not fill in this field:

This site is protected by reCAPTCHA and the Google Privacy Policy and Terms of Service apply.

Hi there! How can we help you?

Contact us using the form below or give us a call.

Send Us A Message:

Do not fill in this field:

This site is protected by reCAPTCHA and the Google Privacy Policy and Terms of Service apply.

Do not fill in this field:

This site is protected by reCAPTCHA and the Google Privacy Policy and Terms of Service apply.

Do not fill in this field:

This site is protected by reCAPTCHA and the Google Privacy Policy and Terms of Service apply.

Do not fill in this field:

This site is protected by reCAPTCHA and the Google Privacy Policy and Terms of Service apply.

$

Do not fill in this field:

This site is protected by reCAPTCHA and the Google Privacy Policy and Terms of Service apply.