Listed by Brad Lewis of True North Real Estate Services,LLC (9318377355)

Listing Sold by Other Non Member Office
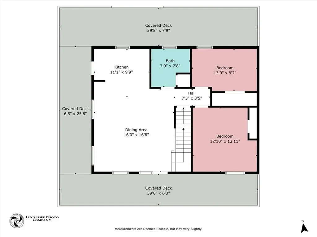
Discover the good life in this spacious 4-bedroom, 3-bathroom cedar-sided home situated on 8 unrestricted, fenced acres. Perfectly designed for a large family, this three-level home offers a versatile floor plan. The Main Floor offers 2 bedrooms, 1 bathroom; Large dinning and kitchen area. Upper-level includes a master bedroom with full bath and a bonus area for a home office. Bountiful lower-level sports a living area large utility room with an additional space for a bedroom and a full bathroom. Equipped with synchronous gigabit bandwidth internet access for remote workers. In addition, this home has great potential for a short-term investment rental. Relax and enjoy abundant wildlife from the wraparound covered deck. This property is ideal for horses, cattle, or other animals and is conveniently located minutes from Rock Island State Park and Highway 70, with easy access to Nashville, Knoxville, and Chattanooga. A must-see for country living, hunting, or homesteading enthusiasts!

Listing Tools

Property Details of 334 Farmer Road

Map Location

Based on information submitted to Upper Cumberland as of November 8, 2025 10:41 AM EST. All data is deemed reliable but is not guaranteed accurate by the MLS. All information should be independently reviewed and verified for accuracy. IDX information is provided exclusively for consumers’ personal, noncommercial use and may not be used for any purpose other than to identify prospective properties consumers may be interested in purchasing.

Hi there! How can we help you?

Contact us using the form below or give us a call.

Send Us A Message:

I agree to receive marketing and customer service calls and text messages from Highlands Elite Real Estate. To opt out, you can reply 'stop' at any time or click the unsubscribe link in the emails. Consent is not a condition of purchase. Msg/data rates may apply. Msg frequency varies. Privacy Policy.

Do not fill in this field:

This site is protected by reCAPTCHA and the Google Privacy Policy and Terms of Service apply.

Hi there! How can we help you?

Contact us using the form below or give us a call.

Send Us A Message:

Do not fill in this field:

This site is protected by reCAPTCHA and the Google Privacy Policy and Terms of Service apply.

Hi there! How can we help you?

Contact us using the form below or give us a call.

Send Us A Message:

Do not fill in this field:

This site is protected by reCAPTCHA and the Google Privacy Policy and Terms of Service apply.

Do not fill in this field:

This site is protected by reCAPTCHA and the Google Privacy Policy and Terms of Service apply.

Do not fill in this field:

This site is protected by reCAPTCHA and the Google Privacy Policy and Terms of Service apply.

Do not fill in this field:

This site is protected by reCAPTCHA and the Google Privacy Policy and Terms of Service apply.

$

Do not fill in this field:

This site is protected by reCAPTCHA and the Google Privacy Policy and Terms of Service apply.