Listed by Heather Skender-Newton of Skender-Newton Realty (9312619001)

Listing Sold by The Real Estate Collective
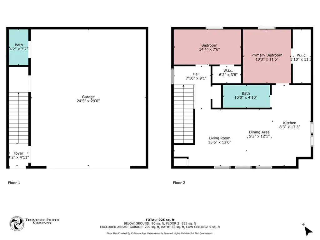
Welcome to your serene mini farm, nestled on 24.52 picturesque acres. This charming property features two distinct residences, offering both comfort & versatility. The main house is a beautifully appointed 3-bed, 2-bath home, with elegant granite countertops & stainless steel appliances, large walk in pantry & laundry room, extra bonus room/office. Spacious & thoughtfully designed, this residence combines functionality with style, making it perfect for both relaxing & entertaining. Adjacent to the main house is a cozy 2-bed, 1.5-bath apartment, which has previously been utilized as a successful Airbnb. This space is ideal for guests, extended family, or even as an income-generating rental opportunity. The property boasts a range of appealing outdoor features, including a scenic creek, a mysterious cave, and a barn. While the land is partially fenced, it offers ample room for various agricultural or recreational pursuits.

Listing Tools

Property Details of 2642 Hilham Highway

Map Location

Based on information submitted to Upper Cumberland as of April 15, 2026 11:45 PM EDT. All data is deemed reliable but is not guaranteed accurate by the MLS. All information should be independently reviewed and verified for accuracy. IDX information is provided exclusively for consumers’ personal, noncommercial use and may not be used for any purpose other than to identify prospective properties consumers may be interested in purchasing.

Hi there! How can we help you?

Contact us using the form below or give us a call.

Send Us A Message:

I agree to be contacted by Highlands Elite Real Estate via call, email, and text for real estate services. To opt out, you can reply 'stop' at any time or reply 'help' for assistance. You can also click the unsubscribe link in the emails. Consent is not a condition of purchase. Message and data rates may apply. Message frequency may vary. Privacy Policy.

Do not fill in this field:

This site is protected by reCAPTCHA and the Google Privacy Policy and Terms of Service apply.

Hi there! How can we help you?

Contact us using the form below or give us a call.

Send Us A Message:

Do not fill in this field:

This site is protected by reCAPTCHA and the Google Privacy Policy and Terms of Service apply.

Hi there! How can we help you?

Contact us using the form below or give us a call.

Send Us A Message:

Do not fill in this field:

This site is protected by reCAPTCHA and the Google Privacy Policy and Terms of Service apply.

Do not fill in this field:

This site is protected by reCAPTCHA and the Google Privacy Policy and Terms of Service apply.

Do not fill in this field:

This site is protected by reCAPTCHA and the Google Privacy Policy and Terms of Service apply.

Do not fill in this field:

This site is protected by reCAPTCHA and the Google Privacy Policy and Terms of Service apply.

$

Do not fill in this field:

This site is protected by reCAPTCHA and the Google Privacy Policy and Terms of Service apply.