Listed by Shirley Smith of Pink Horse Realty (9318647465)
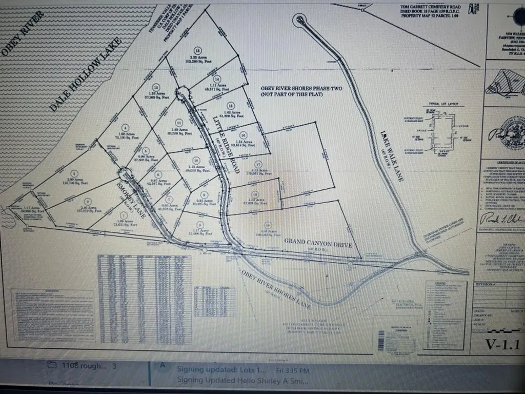
REDUCED!! NO RESTRICTIONS!! New Development!!! Beautiful Obey River Shores. 19 Nice Building Lots in Phase I of this new secluded development. Large lots with underground electric and water. Several Lots have views of Dale Hollow Lake, which is one of the cleanest Lakes in the United States and is the destination for outdoor recreation. There is something peaceful about the shores of Dale Hollow, that neither the beach nor mountains can provide. Perhaps it's the heavenly combination of fresh water, woodsy scents, and the soothing sounds of gentle lapping lake water that you could enjoy from your future deck. We hope everyone will come to appreciate country living in Tennessee! Experience the unspoiled, scenic beauty of Dale Hollow Lake, with over 620 miles of undeveloped shoreline and spring-fed waters. This beautiful property is close to 5 marina and resorts located in Pickett County. Enjoy simple evenings getting back to basics with rocking chairs, lake views, campfires, and

Listing Tools

Property Details of Lot #15 Obey River Shores

Map Location

Based on information submitted to Upper Cumberland as of March 5, 2026 3:41 AM EST. All data is deemed reliable but is not guaranteed accurate by the MLS. All information should be independently reviewed and verified for accuracy. IDX information is provided exclusively for consumers’ personal, noncommercial use and may not be used for any purpose other than to identify prospective properties consumers may be interested in purchasing.

Hi there! How can we help you?

Contact us using the form below or give us a call.

Send Us A Message:

I agree to be contacted by Highlands Elite Real Estate via call, email, and text for real estate services. To opt out, you can reply 'stop' at any time or reply 'help' for assistance. You can also click the unsubscribe link in the emails. Consent is not a condition of purchase. Message and data rates may apply. Message frequency may vary. Privacy Policy.

Do not fill in this field:

This site is protected by reCAPTCHA and the Google Privacy Policy and Terms of Service apply.

Hi there! How can we help you?

Contact us using the form below or give us a call.

Send Us A Message:

Do not fill in this field:

This site is protected by reCAPTCHA and the Google Privacy Policy and Terms of Service apply.

Hi there! How can we help you?

Contact us using the form below or give us a call.

Send Us A Message:

Do not fill in this field:

This site is protected by reCAPTCHA and the Google Privacy Policy and Terms of Service apply.

Do not fill in this field:

This site is protected by reCAPTCHA and the Google Privacy Policy and Terms of Service apply.

Do not fill in this field:

This site is protected by reCAPTCHA and the Google Privacy Policy and Terms of Service apply.

Do not fill in this field:

This site is protected by reCAPTCHA and the Google Privacy Policy and Terms of Service apply.

$

Do not fill in this field:

This site is protected by reCAPTCHA and the Google Privacy Policy and Terms of Service apply.